Project Details
Description
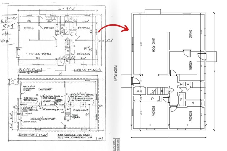
PDF to CAD conversion of floor plan, basement plan, and building elevations.
Project Inputs
Multi-page architectural PDF containing floor, basement, and elevation drawings.
Software Used
AutoCAD
Deliverables
Fully editable DWG files
Total Area
Not specified in the provided PDF
Client Location
United States
About Project
This project involved converting a multi-page architectural PDF containing a floor plan, basement plan, and all four building elevations into precise, fully editable DWG files. Our team recreated every detail, including dimensions, walls, openings, and elevation features, using proper CAD layer structures.
The redrafted drawings were optimized for clarity, future modifications, and compliance with editable CAD standards. The complete DWG package was delivered within 10 hours.
Key Benefits
High-Accuracy Conversion: Precise transformation of PDF drawings into clean, fully editable CAD files.
Quick Delivery: Complete DWG set delivered within 10 hours without compromising accuracy.
Organized CAD Structure: Layered, well-organized files ready for design updates or engineering use.
Improved Drawing Clarity: Improve legibility and clean linework compared to the original PDF.
Project Challanges
- Unclear Linework: Some PDF lines required careful tracing for accuracy.
- Scale Validation: Ensuring correct scale without direct CAD references.
- Elevation Detailing: Recreating façade features accurately from PDFs.
- Layer Reconstruction: Establishing proper layer standards from scratch.
- Tight Timeline: Completing conversion and QC within 10 hours.
Get a quote for your project!
Work
Our Recent Projects

PDF to CAD of City of Palmdale Drywell and Gutter Drain Plans
PDF to CAD conversion of City of Palmdale drywell and gutter drain plans, delivered accurately and fast for clean, editable engineering drawings.

Sidewalk Design Standards PDF into Fully Editable CAD Drawings
We have converted sidewalk design standards from PDF to a precise, fully editable CAD drawing within hours. Fast, accurate, and ready for engineering use.

PDF to CAD of Floor Plan, Basement Plan, and Building Elevations
PDF to CAD conversion of floor plan, basement plan, and building elevations delivered with high accuracy and fast turnaround for seamless architectural use.




